南部国道事務所 PC橋上部で地組して桁移動する小禄道路OFFランプ橋の鋼上部工工事
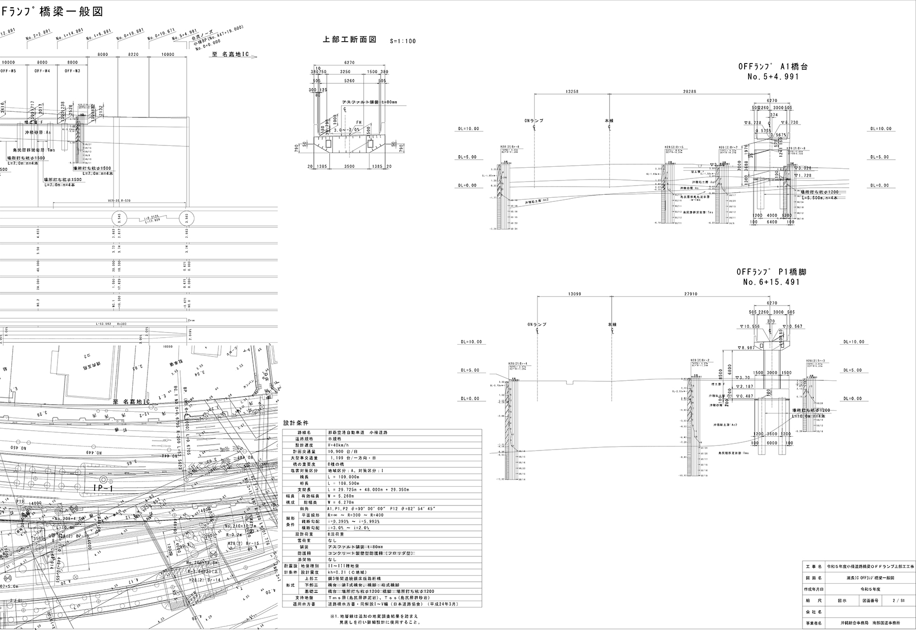
内閣府沖縄総合事務局南部国道事務所は、那覇空港と沖縄自動車道を自動車専用道路で直結すべく事業を進めている小禄道路において、小禄道路OFFランプ橋上部工工事の桁架設を行った。同橋は那覇市具志地内に架かる橋梁で、橋長109m、全幅員6.27m(有効幅員5.26m)、鋼重306.2tの3径間連続鋼床版箱桁橋である。横断勾配は2~3%、縦断勾配は最大6%弱に達する。直下に現道との交差箇所を有しており、当初は自走多軸台車を用いた夜間一括架設を考慮していたが、小禄道路全体で自走多軸台車を用いることが多く、タイムリーな確保が困難であることから、先行して架設されているPC桁上で鋼桁の地組を行い、軌条設備で現場近くまでPC桁上を縦送りし、大型クレーンで吊り上げ、所定の現場に架設するという工法に変更している。桁の製作・架設は日本鉄塔工業。現在は、PC桁上で鋼桁の地組立てが進んでおり、「本線部のPC上部工が完成した10月以降に軌条設備の延伸を進めたうえで、架設を開始した」(同社)。その現場を取材した。(井手迫瑞樹)

工事概要と完成予想図

施工位置図

施工一般図
最大で130m程度、地組ヤードからクレーン架設予定現場まで縦送り
若松工場で桁製作 現場に合わせて26ブロックに分けて運送
550tATCによる一括架設で施工
桁製作は同社の若松工場で行い、那覇港まで内航船で運んだ後に水洗いし、現場まで陸送した。陸送時は、重さ9.78t~12.98t 長さ6.17m~10.6mのブロックを左右2分割の断面に26ブロックに分けて輸送した。
現場の架設方法は、P12~OFFランプP2間および、OFFランプP1間の支点部周辺がトラッククレーンベント架設、P1およびP2の両側の数ブロックを片持ち架設、P1~P2の落とし込み部とA1からP1手前の片持ちで架設した部分までの間を550tATCによる一括架設で施工する。
最大で130m程度、地組ヤードからクレーン架設予定現場まで縦送り
施工前にも一度550tATCを用いて80tの桁を試し吊り
さて、施工計画の詳細である。軌条設備は全長で213mに達する。最大で130m程度、地組ヤードからクレーン架設予定現場まで縦送りする必要があるが、縦送り作業そのものは1日で完了する予定だ。

架設工法計画図
550tクレーンによる大型桁ブロックの一括架設は、直下の国道を夜間規制して行う。施工はクレーンの組み立てから解体まで5日間で行われる。A1~P1間の大型ブロックを例に挙げると、①550tATCを相番のリフターで組み立てる。②翌日午前中に玉掛調整を行い、午後に軌条桁を用いて75m程度縦送りする。③さらに3日目午前中に58m縦送りを行う。同日の午後は予備に充てる。夜間に直下の国道を対面規制とし、2車線を施工ヤードとして用いて、桁(ブロック長30m、鋼重80t)を架設する。④4日目は予備日に充て、⑤5日目にクレーンを解体して完了、という工程で進めていく。


PC桁上での地組状況

軌条設備による縦送り前の桁

軌条設備
P1~P2間の落とし込みブロック(地組ブロック長28.6m、地組ブロック重量86.4t)も、軌条桁の送り出し長、使用クレーン、規制手法とも同様であるが、同ブロックはA1~P1近傍部と異なり、両方とも空中ジョイントとなる。そのため、P2側にはセッティングビームを設置するが、P1側は吊り状態で架設する。基本的にP1側の支口から合わせる形で架設し、P1側は当日にボルトの本締めを行う一方、P2側は予め20mmほどセットバックして置き、当日は仮締めで対応し、後日セットバックしたうえで、本締めを行う計画としている。ブロック間の架設時クリアランス両側とも20mmしかない一方で、架設地は国道の上空であり、効率的かつ安全な施工が求められることから、施工前にも一度550tATCを用いて80tの桁を試し吊りし、玉掛調整から桁勾配、支口角度に沿った架設を想定した訓練を行い、万全を期した。


縦送り状況


大ブロック架設状況
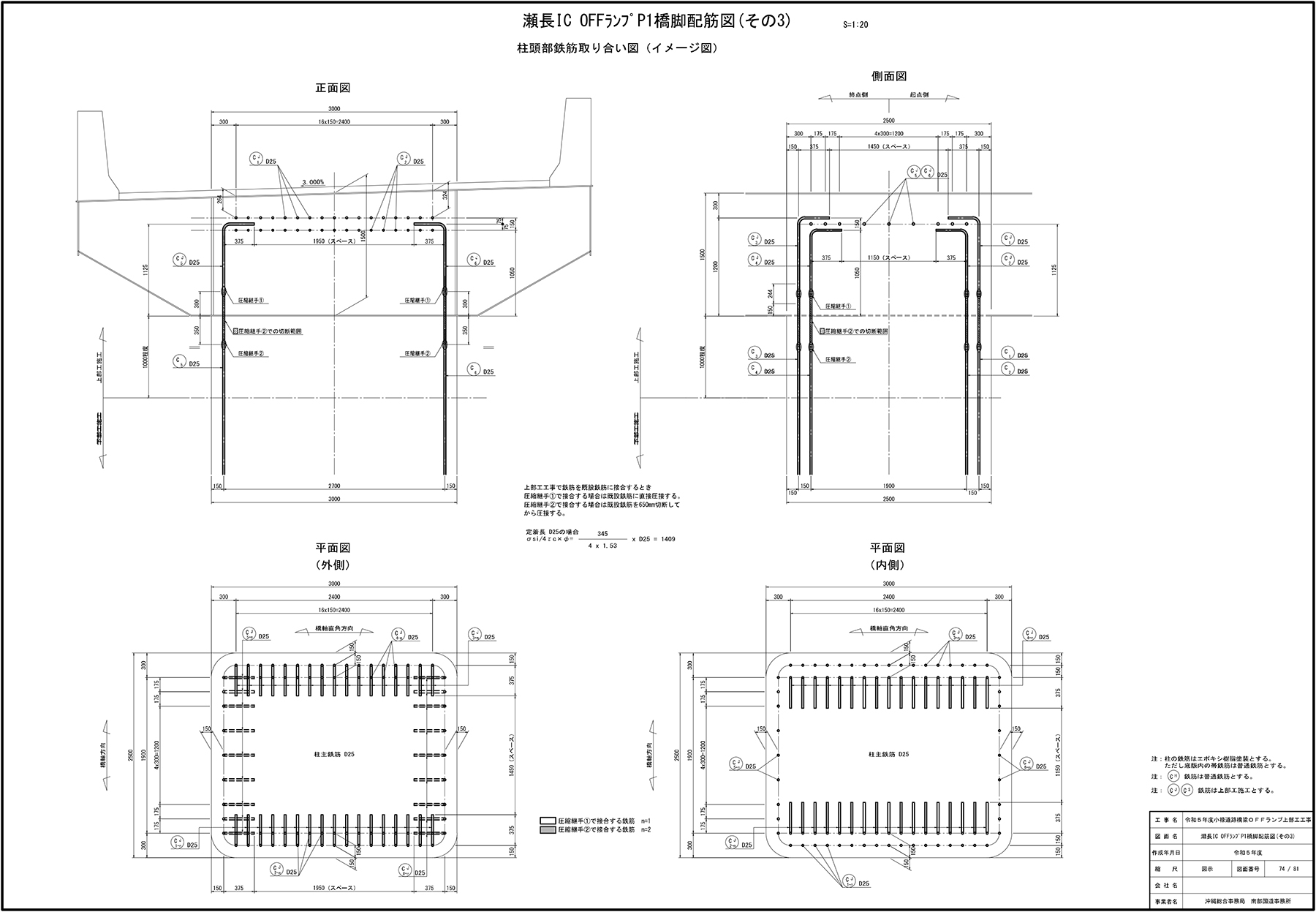
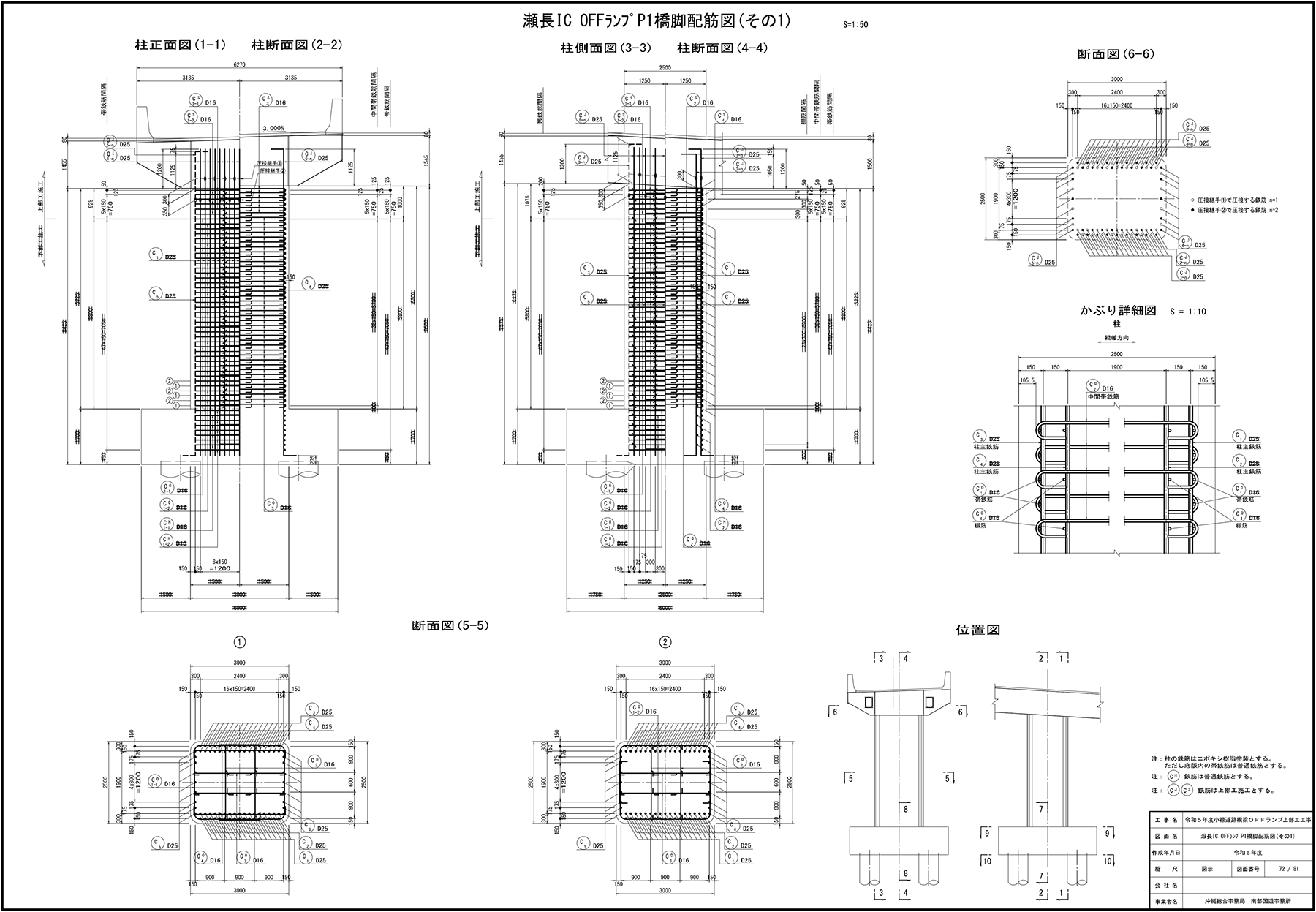
P1、P2が鋼桁とRC橋脚の剛結構造
防食はAl-Mg溶射+ふっ素樹脂トップコートというスーパー防食仕様
さて、鋼桁の架設方法と共に本現場の特徴を成すのが、P1、P2が鋼桁とRC橋脚の剛結構造であるという点だ。中詰めコンクリートの打設高は2.5m、橋脚から延びる鉛直方向の鉄筋数はP1、P2橋脚ともに86本に達する。これを上部工桁内に配置するL字鉄筋(鋼・RCの一体化のために必要な)と機械継手で繋がなくてはいけない。そのため上部の鋼桁側から鉄筋を挿し込む時のガイドとして塩ビ管を筒状にしたものを接続部に配置し、ずれないようにした上で、機械継手によりつなげる手法を計画した。同ガイド材は機械継手を接続する前に抜くことができ、再利用することが可能である。同社は同手法を圏央道での剛結構造でも用いており、今回それを援用することで、確実な鉄筋継手の施工と工期の短縮を図っている。

鋼桁とRC橋脚の剛結部 設計図面

剛結橋脚の架設状況と鉄筋受け入れガイド(塩ビ管を筒状にしたものを接続部に配置している)
鉄筋をつなぎ、配力筋を配置した後は、2.5mの高さを高さ40cmピッチのレイヤーで流し込み、打設していく。使用するコンクリートはスランプ12cmの普通コンクリートとした。こうした剛結部の中詰めコンクリートは内部が見えないため、流動性を確保し、空洞を作らないようにすべく、中ないしは高流動コンクリートを採用する場合がままある。しかし、同社では過去に自社で行った剛結部施工前の透明型枠による試験施工例を考慮し、そうしたコンクリートを使わずとも、剛結部にバイブレーターの挿込み口を多数作り、締固めをしっかりと行うことで、剛結部の中詰めコンクリート品質を確保できると判断した。

剛結部のコンクリート打設状況
防食はAl-Mg溶射+ふっ素樹脂トップコートというスーパー防食仕様である。また、大型ブロック同士の接合部(4か所)は添接により接合するが、他の桁ブロック同士の接合は全断面溶接により防食性能をより高める。添接ボルトは工場で頭部のみ桁部と同様のAl-Mg合金溶射を施した防錆ボルト(日鉄ボルテン製)を採用する方針だ。
同橋の設計はオリエンタルコンサルタンツ。一次協力会社はとび、足場工、溶接とも仲本工業、コンクリート打設工は仲本工業、防食工は沖神。支承はビー・ビー・エム。




