NEXCO西日本 阪神改築事務所 VFC上面増厚やプレキャストPC床版への取替
中国道と近畿道の重交通路線 57.8kmの大規模更新を進める

西日本高速道路株式会社
関西支社
阪神改築事務所
所長
松井 隆行氏
西日本高速道路 関西支社 阪神改築事務所は、中国自動車道(吹田JCT~神戸JCT間31.6km)と近畿自動車道(吹田JCT~長原IC間26.2km)の計57.8kmの大規模更新事業を所管する事務所である。両道路の区間とも建設から50年以上が経過し、老朽化対策が急務となっている。近畿道の大規模更新の方向性や中国道で現在実施している宝塚IC~神戸JCT間のリニューアル事業の構造的及び工法的特徴について、同事務所の松井隆行所長に、床版取替の特徴、環境シェルターの取替、VFC(Very high strength Fiber reinforced Cementitious composites)による上面増厚の施工など詳細を聞いた。(井手迫瑞樹)
中国道および近畿道 トータル57.8kmの改築事業を担当
中国道および近畿道 トータル57.8kmの改築事業を担当
宝塚IC~西宮北IC、西宮北IC~神戸JCTで床版取替、床版防水など進める
――阪神改築事務所の管理道路の概要と、具体的な橋梁・トンネルの内訳について教えてください。
松井所長 当事務所の所掌範囲は、中国道の吹田JCT~神戸JCTまでの31.6kmに加え、近畿道が吹田JCT~長原ICまでの26.2kmで、トータル57.8kmの改築事業を担当しています。当事務所は改築事業を担当し、道路管理は神戸高速道路事務所、もしくは大阪高速道路事務所が担っています。

阪神改築事務所の事業担当概要図(NEXCO西日本提供、以下同)
――現在の進捗状況はいかがですか?
松井 中国道 吹田~宝塚間の区間が工事完了しています。吹田~中国池田間では12橋4.8km、198径間の床版等の取り替えを完了し、中国池田~宝塚間では9橋3.6km、203径間の床版等の取り替えが完了しています。現在稼働中なのが宝塚IC~西宮北IC、そして西宮北IC~神戸JCTの区間で、床版等の取り替えを行っています。6橋1.0km、32径間です。その他、床版防水工などの修繕工事(14橋2.2km+16橋5.9km+21橋3.5km)にも順次着手しています。
――山岳部のトンネル工事についてはいかがですか?
松井 宝塚IC~神戸JCTの区間は山岳部に沿っており、宝塚東トンネル、西トンネルの上下線で4トンネルがあります。下り線の宝塚東トンネルの一部で、トンネル背面空洞注入および覆工補強などを実施しています。その他のトンネルについても、背面空洞注入や覆工補強を計画中です。あわせて、環境シェルター536mの更新を行っています。
近畿道 まずは摂津北ICのA・Dランプ橋と門真ICのCランプ橋の修繕工事
VFCによる床版増厚補強と高性能床版防水工による修繕
――全体の進捗率はどの程度ですか
松井 吹田IC~神戸JCTまでの全事業で、橋梁延長比に換算すると大体78%ぐらいの進捗率になっています。
――近畿道の状況はいかがですか
松井 近畿道は計画立案中です。まずはランプ橋の床版の修繕工事に着手するよう計画しており、修繕工事を1件発注手続き中です。また、床版取替の基本設計についても1件発注手続き中です。近畿道本線の大規模な交通規制を伴う取替え等は、構造物の安全性や周辺ネットワークの整備状況などを踏まえ、適切な時期に着手していくよう考えています。当面はランプ橋の修繕工事と床版取替工事に先行着手していこうという戦略です。
――具体的にどのランプで工事を予定していますか?
松井 まずは、摂津北ICのA・Dランプ橋と門真ICのCランプ橋の修繕工事を、R8年度に発注する予定です。

摂津北IC
――修繕工事ではVFCを検討されているのですか?
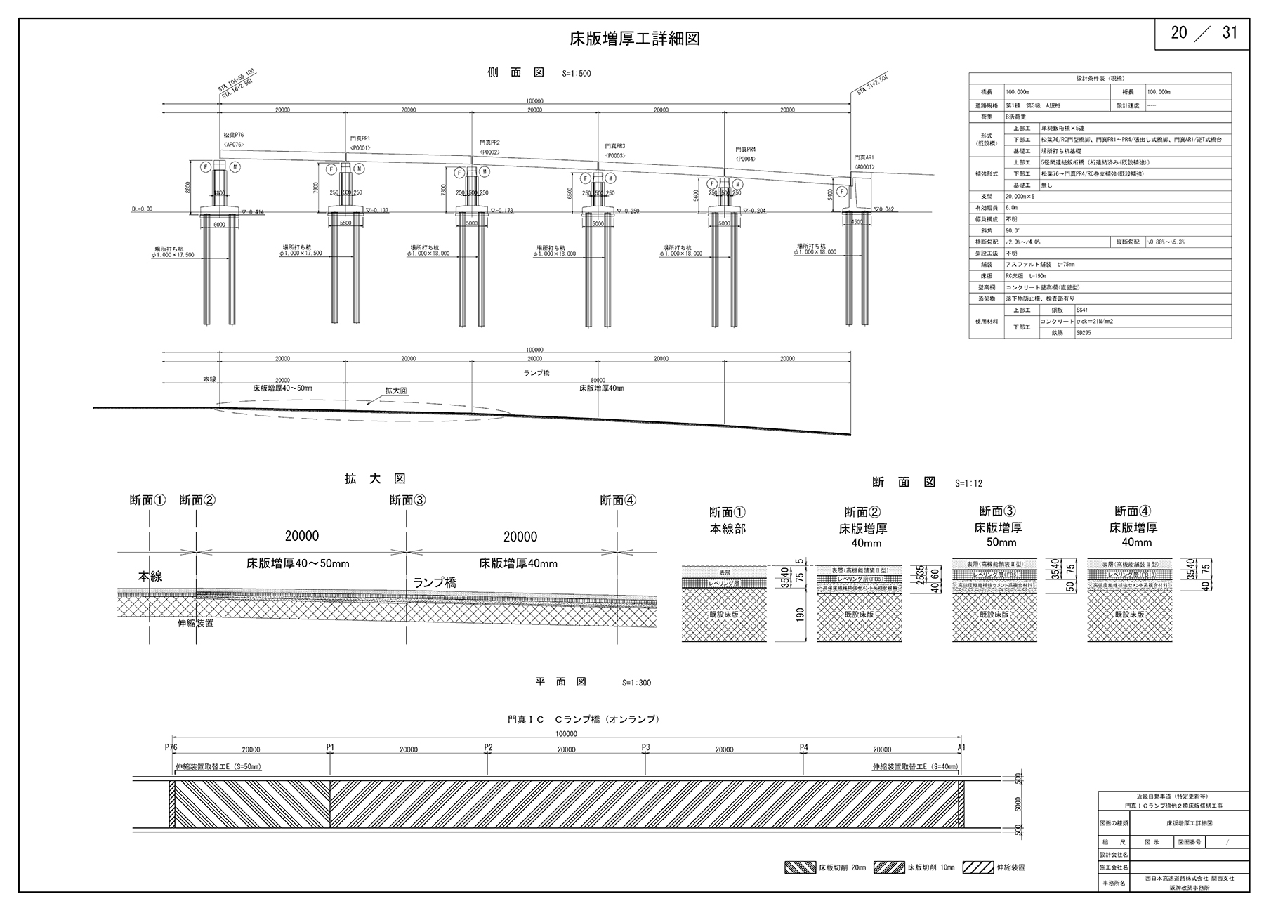
松井 まだ調整中ですが、劣化が著しい床版は床版更新を基本と考えますが、劣化が顕在化していない床版、かつ旧設計基準が適用された厚さが薄い床版は、VFCによる床版増厚補強と高性能床版防水工による修繕工事を考えています。
――VFCで増厚するのですか。劣化している厚さをWJではつって、同厚を打ち換えるというわけではないのですね
松井 修繕対象橋梁はそこまで傷んでいないので、床版増厚による補強を行います。もちろん傷んでいる箇所は断面修復を行い、その上で増厚補強します。基本的には、既設床版を10mm程度、WJではつり、そのうえに40mm程度VFCを打込み、実質30mm程度の床版増厚を行う計画を考えています。

床版増厚断面概要図
――ランプ橋での勾配は。VFCのセルフレベリング性を有する特徴上、条件がきついと思いますが、施工は可能ですか?
松井 縦断勾配が最大で5.3%で、当然きついですが、施工実績のある各メーカーにヒアリングして、施工できることを確認しています。
――近畿道の橋梁の延長と橋種別割合はどの程度ですか?
松井 橋梁が99%です。唯一、吹田IC~摂津北ICまでのわずかな間に土工があるぐらいです。
近畿道は6~12万台の日交通量 大型車混入率も20~30%に達する
疲労による損傷が卓越 鋼桁の疲労損傷の措置方法についても検討
――近畿道の供用年次について教えてください
松井 吹田IC~門真ICの間が昭和45年3月、門真IC~東大阪北ICが昭和51年3月、東大阪北~東大阪JCTが昭和58年、東大阪JCT~八尾ICが昭和62年、八尾~松原JCTまでが昭和63年にそれぞれ供用されました。古い橋も多く、特に昭和45年の区間は大阪万博(1970年)に向けて建設され、極めて経済的に設計されています。
――1日交通量と大型車交通台数は
松井 区間によっても変わりますが、近畿道は6~12万台の日交通があり、大型車混入率は20~30%程度です。

近畿道の供用状況
――古い橋梁も多いですが、中国道で非常に更新に苦労した特殊な形式の鋼橋はないのですか
松井 あります。吹田JCT~門真IC間の昭和45年3月供用区間は、中国道 吹田~中国池田と同じ時期に供用されており、桁高の低さ、鋼桁の板厚の薄さ等、ディテールは同様となっています。当該区間は大阪万博(1970年)の開幕に合わせて建設・供用したもので、鋼桁も経済設計されており、一部、中間支点部付近にPC鋼材でプレストレスを導入した連続合成桁やロールH鋼桁、高強度材料(SM580材)を採用した合成桁などがあります。
②-のコピー.jpg)
ロールH鋼桁(松葉高架橋)
(淀川橋)①-1.jpg)
高強度材料(SM580材)を採用し、かつ中間支点部付近にPC鋼材でプレストレスを導入した連続合成桁(淀川橋)
――桁ごと取り換える必要がありますね
松井 鋼桁の取替可否については、床版および鋼桁の劣化状況や施工方法、コスト、将来の維持管理のし易さに加え、工事に伴う社会的影響等を総合的に勘案し、慎重に判断していきたいと考えています。



中国道における鋼桁取替実施例写真
――近畿道の損傷の特徴としては、交通台数的に10万台を超え、大型車交通台数が多いこともあり、より疲労損傷が卓越しているのでしょうね
松井 疲労による損傷が卓越しており、垂直補剛材などに疲労亀裂が確認されている箇所もあります。凍結防止剤の散布量は中国道に比べて少なく、塩害による劣化はそれほど生じていません。床版も含め劣化の主原因は重交通による疲労であると考えます。
.jpg)

垂直補剛材などへの疲労亀裂状況(補修済み)
そのため、床版更新に当たっては、主桁の疲労亀裂への対応なども併せて考えて行く必要があります。例えば、床版を更新することによる垂直補剛材の止端部の発生応力の低下程度などにも着目しながら、鋼桁の疲労損傷の措置方法についても検討していきたいです。
近畿道 工事規制に伴う渋滞対策が必要
TDMや広域道路ネットワークの進捗に合わせてリニューアル事業を進めていく
――近畿道で床版取り替えを行う際の最大の懸念は何ですか
松井 やはり大きな問題は重交通への対応だと考えます。終日通行止めにより短期集中で工事する方法や終日車線規制で長期間にわたり工事する方法など、様々な工事規制方法が考えられますが、どちらも工事規制に伴う近畿道および一般道の渋滞は非常に大きなものになると考えられます。
特に近畿道は大阪市内を横断する河川が多いという特徴があります。近畿道を一般道で迂回しようとすると、淀川や安威川を横過する橋梁が少ないため一般道側での渋滞が危惧されます。
――対策は?
松井 工事方法の工夫による工事規制期間の短縮などハード対策に加え、ソフト対策を充実する必要があると考えます。広報、迂回促進や出控えなどのTDM(Transportation Demand Management)の検討、周辺道路ネットワークの整備状況を踏まえた実施時期の検討などを行っていきます。
例えば、工事着手する時期は新名神や大和北道路などの開通を待つのが理想だと考えます。新名神が開通することで第二京阪道路への迂回が期待できます。また、大和北道路が開通すると、新名神 城陽JCTから近畿道 松原JCTまでが高速ネットワークで繋がりますので、近畿道を大きく迂回できるようになります。さらに淀川左岸線も開通すると、大阪市内向けのネットワークが拡充し、さらに近畿道の交通量が分散されるものと考えます。
――それは、九州道の向佐野橋でやったような鉄道やバスへのシフト、広報戦略などを合わせて、施工時の交通量をシフトさせるような施策を行うしかないでしょうね
松井 そうですね、過去に九州道で実施した他の交通機関の利用促進などもTDMの検討に含まれるものと思います。
VFCは恒久対策 中間支点部付近にPC鋼材でプレストレスを導入した連続合成桁等でも補修補強か架替えかは適切に検討
床版取替 高耐久鋼床版の採用もありうる
――更新着手までの間の安全性確保はどうされますか?
松井 更新工事に着手するまでの間の安全性をしっかり監視しながら、必要な部分補修など、安全性を確実に確保するための措置を講じます。
――VFCをランプ橋で床版増厚の形で施工していますが、これは床版取替までの延命策として使うのですか?
松井 VFCは延命措置だとは思っておらず、恒久対策として検討しています。
また、支間の長い床版では、VFCによる増厚に加え、NEXCO東日本で実績のあるFSグリッドなど床版下面からの床版疲労対策を併用することなども検討していきたいです。

FSグリッド(他工事事例、井手迫瑞樹撮影)
――桁高が低い、古い設計基準の橋梁の対応方針は?
松井 基本的に、今後も安全な供用に耐え得る橋梁については、しっかりと修繕を行いながら使っていきます。具体的な方針については、劣化の程度、コスト見合い、工事に伴う社会的影響なども踏まえ、現在検討中です。安易に桁取替えを選択することはありません。
――中間支点部付近にPC鋼材でプレストレスを導入した連続合成桁等でもですか?
松井 基本的に、適切な補修補強で延命できるのであれば、使えるうちはしっかり使っていきます。 ただ、中間支点部付近にPC鋼材でプレストレスを導入した連続合成桁など、床版のみの取替作業が非常に危険となる場合や、鋼桁補強量が大規模となり桁取替のほうが安価になる場合など、各橋梁の構造特性や架橋条件等も踏まえ桁更新も視野に判断していきたいと考えます。
――床版取替において鋼床版の採用は検討されていますか?
松井 可能性としてはあります。鋼床版による取り替えは施工時間が大幅に短縮されるなどのメリットがあると考えています。ただ、冬季の路面凍結のリスクがあるので山岳部では採用されませんが、近畿道のような氷点下になりにくい都市部の道路では有用な技術だと考えます。
――鋼床版を使う場合の舗装はどうされますか? 阪和道では仮設鋼床版上はもちろん、本設のプレキャストPC床版上でもフル・ファンクション・ペーブを使い、路面凍結による事故防止を図っていますが
松井 近畿道で線形も緩く、縦断勾配もそれほど大きくないため、凍結の恐れもないということを前提で路面凍結抑制を目的とした安全対策が必要なところは無いものと考えます。
――鋼床版のタイプはどのようなものを想定していますか?
松井 中国道の吹田~中国池田間で採用した高耐久鋼床版が前提になると考えています。

中国道リニューアル工事で採用した高耐久鋼床版
――凍結に関する環境測定は行っていますか?
松井 実際のところ、外気温などの環境雰囲気を定量的に整理していきたいと考えています。例えば、滋賀の名神・追分橋や蝉丸橋は鋼床版を採用していますが、路面凍結が問題になったという例は今のところありませんが、冬季には無降水凍結が危惧される区間です。そのような環境がどういう環境雰囲気なのか、近畿道はどうなのかなど、継続して調査していきます。


.jpg)


