NEXCO西日本 阪神改築事務所 VFC上面増厚やプレキャストPC床版への取替
有野川橋 鉄道上、河川上で非常に著しい劣化が見られる
有馬川橋床版取替で間詰め部にスリムクリート、スリムトップのPCaPC床版を採用
武庫川橋で、PC箱桁においてグラウトの充填不足が確認 リパッシブ工法で再充填
――中国道の現在の工事状況について教えてください。
松井 現在動いているのは宝塚IC~神戸JCT間の上下線のリニューアル工事です。西宮北IC~神戸JCT間1.8kmは1974年6月4日に供用して52年が経過、宝塚IC~西宮北IC間13.2kmは1975年10月16日に供用されてから51年が経過しています。
現在は、西宮北IC付近の有馬川橋の床版取替が完了しています。上下線とも完了し、このときにスリムクリート、スリムトップのプレキャストPC床版を採用しています。



有馬川橋の床版取替実施状況①(床版切断状況)

同②(床版撤去状況)

同③(床版取替状況)

同④(間詰め部スリムクリート施工状況)
有馬川橋の上下線床版取替実施設計図
現在稼働中なのが武庫川橋で、PC箱桁においてグラウトの充填不足が確認されたため、リパッシブ工法で再充填作業中です。

武庫川橋全景


グラウト充填不足状況(CCDカメラによる不足確認状況写真)



リパッシブ工法施工状況①(左)コア削孔状況、(中)真空ポンプによる通気・密閉度確認、(右)細径チューブの挿入



同②(左)導入キャップの取付、(中)漏水防止用給水シート養生、(右)亜硝酸リチウム水溶液の注入


同③ (左)亜硝酸リチウム水溶液の除去、(中)補修材の注入、(右)同排出状況

同④(左)注入剤の撤去状況、(右)断面修復材の施工状況
併せて、武庫川橋では、環境シェルター(青葉台シェルター)の更新工事も実施しています。シェルターは屋根材が著しく腐食しており、支柱はヒンジ構造で壁高欄天端に接続していますが、そのヒンジ部分の腐食も著しく進んでいます。その他、内装板や吸音板などの部材も老朽化しています。

環境シェルターの損傷状況(ヒンジ構造の腐食)

同シェルター内側状況
また、壁高欄そのものも塩害による劣化が著しく、鉄筋が露出している状態です。そのため、壁高欄も取り替える必要があります。現在は直壁型ですが、これをフロリダ型壁高欄(ケイコン製のEMC壁高欄)に順次取り替えを行っています。
環境シェルター再設置 EMC壁高欄に背面固定
シェルター SUS、ガルバリウム鋼板を使用 アルミ材料を採用した吸音パネルも
――床版の取り替えも実施するのでしょうか?
松井 武庫川橋はPC箱桁のため、床版取り替えは行いません。
壁高欄の取替えについては、まず地覆部から上の部分をカッターで切断して、新しいプレキャスト壁高欄をアンカーで固定します。もう少し詳しく説明すると、床版レベルから地覆部立ち上がりまで数十ミリ上げた状況で切断し、WJで既設鉄筋を露出させた上で、新しいプレキャスト壁高欄をアンカー固定する方法です。壁高欄を据え付けた後に新しい環境シェルターを架設していきます。





壁高欄の取替状況(最上段 カッター切断、2段目 WJ施工、3段目 アンカー部削孔、最下段 間詰め部施工による一体化状況)
――工事の規制方法について教えてください
松井 壁高欄の取替え工事は、上下線とも終日車線規制で実施しています。

壁高欄設置完了状況
環境シェルター(下り線)については既に撤去と架設が完了しています。

環境シェルターの撤去状況

環境シェルター撤去後

環境シェルター設置状況

設置完了状況
上り線の撤去についても令和7年度下半期(昨年の10月20日から10月31日)に夜間通行止めにより撤去を完了しています。現在は上り線の壁高欄の取替えを実施中で、今年秋頃まで続く予定です。それが終われば、新しい環境シェルターを今下半期に夜間通行止めを行い架設する予定です。
――新しいシェルターの仕様について教えてください
松井 基本的には原型復旧ですが、供用50年で取り替えが必要となるほど劣化しているため、耐久性に配慮した材料を使用します。具体的には、SUS、ガルバリウム鋼板やアルミ材料を採用した吸音パネルなどを使用します。
――点検・管理面での改善はありますか?
松井 シェルター用の点検・検査路を設置します。これにより定期的な点検が容易になります。
――ヒンジ構造は継続するのでしょうか?
松井 今回は壁高欄の背面にアンカーで固定する方式に変更します。壁高欄が直壁型からフロリダ型に変更され、構造的に強くなったため、それを利用し背面固定が可能となりました。


壁高欄の背面にアンカーで固定する方式
――背面固定に変更する理由は何ですか?
松井 シェルターは壁高欄天端に設置していましたが、当該路線は凍結防止剤を多く散布する路線です。基本的にはシェルター内では凍結防止剤を散布しませんが、シェルター外で散布された凍結防止剤が車両により引きずられて、壁高欄や柱ヒンジ部に付着します。シェルターがあるため降雨によって凍結防止剤が流れ落ちず、著しい腐食劣化の原因につながっていました。背面固定にすることで、凍結防止剤が直接固定部分にかからないよう配慮しています。
有野川橋 鉄道上、河川上で非常に著しい劣化が見られる
著しい劣化部分に交通荷重が乗ることを避けながら床版取替
――有野川橋の状況について教えてください
松井 有野川橋は西宮北IC~神戸JCTの間に位置し、鉄道上、河川上で非常に著しい劣化が見られます。床版は亀甲状のひび割れ、エフロレッセンスが生じており、剥離・剥落も生じており、加速期(末期)に相当するものと判断しています。
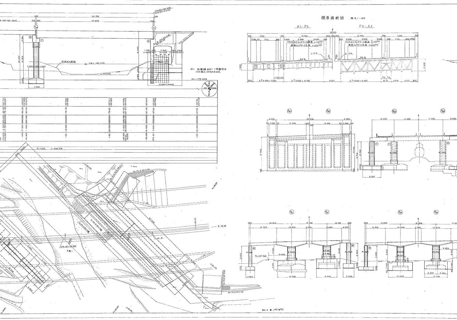
有野川橋の床版取替を行う部分は橋長208.7mの鋼3+3径間連続7主鈑桁+鋼単純非合成桁橋で、幅員が全体で38.9mです。
-2.jpg)
有野川橋一般図(NEXCO西日本提供資料)
-2.jpg)
同拡幅図(同)

スピンジェットノズルによる既往の補修
――有野川橋は補修も確か行っていますよね。神戸電鉄の三田線を跨ぐ箇所にある橋ですね
松井 更新までの延命化措置として、2018年に床版補修を実施しています。床版下面より削孔、スピンジェットノズルによる水平ひび割れのWJ洗浄、水平ひび割れへの低圧樹脂注入などによる補修を実施しています。しかしながら他の箇所での劣化が顕在化してきたことから床版取替を行う判断に至りました。
――有野川橋の交通規制はどのように行うのですか?
松井 西宮北ICと神戸JCTが近く、その距離は約2km程度と短いです。IC・JCTが近いため付加車線があり、上下4車線の計8車線断面を構成しています。この8車線断面を活用し、上下2車線運用の対面通行規制で施工する予定です。
――これは上下線とも床版取替を行うのですか
松井 上下線とも行います。
――一時的に交通量が大きくなる断面も出てくると思います。東北道の迫川橋では、床版取替に際し、当初取替予定ではなかった方が、対面通行規制を行った僅かな時期に急速劣化し、床版取替を行うに至った例もあります。その時は、床版裏面側に緊急的な補修を行いましたが、有野川橋もそうなる可能性はありませんか。
松井 大いにあり得ます。有野川橋は、最初は半断面施工を検討していましたが、既設床版の劣化が著しく、安全に半断面施工を実施することが困難であると判断し、対面通行規制による施工に決めました。これにより、著しい劣化部分に交通荷重が乗ることを避けます。
――床版の取り替え方法について教えてください
松井 ステップ1では、上下線を3車線断面とし、対面通行に備えた準備工事を完了させます。
ステップ2では、対面通行規制前に、下り線の壁高欄を撤去します。
ステップ3では、現交通を上り線側に2車線ずつ確保した対面通行規制を実施し、下り線4車線全断面の床版の撤去、架設を行います。上り線も同様に施工します。プレキャストPC床版は運搬の関係上、橋軸直角方向に2分割で製作・架設し、最終的にPC横締めにより4車線分の床版を一体化します。
床版の継手はスリムファスナー、壁高欄はEMC壁高欄(プレキャスト)を採用します。
――工事のスケジュールはどうなっていますか?
松井 下り線側の取替えに伴う対面通行規制を2026年のお盆明けから開始に向けて検討・調整中です。上り線側の取替工事は2027年に計画しています。
RC中空床版部でUHPFRCによる床版上面補修を実施
床版上面補修後はWjで研掃し、BLGを施工
――UHPFRC (超高性能繊維補強コンクリート)の活用について教えてください
松井 有馬川橋(RC中空床版部)でUHPFRC (スティフクリート)による床版上面の補修を実施しました。RC中空床版の上面で鉄筋かぶりがほぼ無い状態の部分を補完する形で、UHPFRC による上面増厚を行いました。鉄筋の腐食は大きく進んでいませんでしたが、かぶり不足の対策として採用しました。

舗装撤去後の床版下地
――スティフクリートを打設した季節は? また既設床版界面の接着方法はどのような手法を採用しましたか
松井 上り線をR6.3~R6.4(追越側)、R7.2~R7.3(走行側)施工しました。下り線についてはR6.3~R6.4(追越側)に施工し、残る部分をR8.5~R8.6(走行側)で計画しております。既設床版界面の接着については、既設床版をWJ(アクアサーフェスクリーナー)で研掃し、プライマーを塗布しています。

WJ施工状況

給水調整剤

接着剤塗布工

スティフクリート打設工(機械)

同人力施工部
――UHPFRC施工後の防水工はどうされましたか?
松井 UHPFRC 打設後はグレードⅡ相当の防水(橋梁レベリング層用グースアスファルト混合物「BLG」)を施工しました。UHPFRCと縁石との境界部についてはグレードⅡ防水工を実施しています。

BLG施工状況
――このほかにUHPFRC による上面増厚を予定している橋梁はありますか
松井 惣川橋(鋼鈑桁のRC床版(床版厚は190mm)、橋長326m)で予定しています。同橋は取り替えるほど傷んでおらず、過去にSFRC増厚もしていませんので、今回 UHPFRCによる上面増厚を行います。

惣川橋全景
トンネル補修 スペースパック工法で施工
――トンネルの補修工事についても教えてください。
松井 宝塚西トンネルと東トンネルで、道路軸方向の背面空洞が一部確認されており、充填工事を実施しています。下り線の宝塚東トンネルの一部ではすでに充填完了しており、残りの工事計画を策定中です。
――充填工法はどのような工法を採用しましたか?
松井 スペースパック工法で施工しました。

スペースパック工法によるトンネル補修①(注入口削孔状況)

同②(左)車上プラント組み立て完了状況、(中)注入ホース取付、(右)注入工施工状況
――他、示されている荒神川橋や尼子川橋についての大規模更新や修繕は
松井 高性能床版防水や舗装の打替えなどを施工します。
――塗装工事についても教えてください
松井 床版を取り替えに併せて必要な橋梁は塗り替えを実施します。塗膜除去工法は循環式ブラストによる施工を考えています。塗装面積は32,000㎡です。
――現在進行中の中国道大規模リニューアル工事の状況はいかがですか?
松井 中国道の大規模更新工事は、吹田~宝塚までが概成しました。大きな事故もなく進めることができています。ただし、大規模な工事であり、お客様が走行するなかでの工事となるため、重大事故のリスクは高く、引き続き慎重に施工計画・安全管理に努めて参りたいと考えています。
交通規制を伴う工事であり、渋滞という大きなご迷惑をおかけしていますので、できる限り速やかに工事を完了したいと考えています。また、民家連坦地区での作業も多数ありますので、周辺住民への配慮も欠かさず進めていきます。
――近畿道着手にあたっての課題や準備状況はいかがですか?
松井 近畿道への工事着手は関西の新しいチャレンジでもあります。まずはランプ橋のVFCによる上面増厚・床版取替などから着手していきます。
着手にあたっては関係機関との協議・調整が非常に重要です。警察、モノレール、その他多くの関係者に丁寧に説明し理解を得ながら、一歩ずつ近畿道に入っていきたいと思っています。
――ありがとうございました





