NEXCO大規模更新シリーズ⑥ 阪和道境谷橋などで仮設鋼床版を用いた床版取替実施
短い時間で施工するために5つの工夫を導入
床版取替、橋面上の1日の実施工時間は約8時間
短い時間で施工するために5つの工夫を導入
さて、床版の取替である。
境谷橋は現在までに4回の夜間通行止め規制を行い、床版取替を進めている。
床版取替範囲-4.jpg)
4回の通行止めを行い、床版を取り替える範囲
床版取替期間の夜間通行止めは20時から翌朝6時までの10時間であるが、施工に使える時間は本線安全点検の前後1時間を除いた正味8時間である。
床版取替は基本、床版を切断、撤去して、その後に桁上フランジ上面を研掃し、桁と床版をつなぐためのコンクリート或いはモルタルを流し込む型枠替わりとしてのソールスポンジを設置し、プレキャストPC床版を架設、スタッドを溶植し、床版および高欄同士の目地部と桁床版剛結部(スタッド部)にコンクリート或いはモルタルを打設、床版上面を研掃した後、床版防水、舗装を施工し、完成というのが一連の流れである。しかし、正味8時間では、それらの工程全てを行うことはできない。
そのため、施工にあたっては5つの工夫を行った。
仮設鋼床版を4,000㎡強で設置、3割を転用可能にしてコスト縮減
桁との間にクリアランスをつくることで、供用中でも一部の作業を可能に
1つ目の工夫は仮設鋼床版の採用である。境谷橋において仮設鋼床版は、現在までの所、4084m²(AB1-PB3:1074m²、PB3-PB6:1003m²、PB6-PB9:1003m²、PA8-PA11:1004m²)、設置枚数 (全断面)は、182枚 (AB1-P3:47枚、PB3-PB6:47枚、PB6-PB9:44枚、PA8-PA11:44枚)の使用を予定している。


仮設鋼床版(設置状況、PCaPC床版へ取り替えるために撤去されている状況)(井手迫瑞樹撮影)
仮設鋼床版は基本的に、現場で転用できるようにしている。転用率は異形版を除く30%程度となる予定である。
仮設鋼床版は、床版撤去後素早く設置することができ、本設のPC床版架設までの一定期間仮設置しておくために採用された。仮設鋼床版上には予め基層としてグースアスファルトを舗設しておく。

予めグースアスファルトを舗設している仮設鋼床版上面
夜間通行止め期間においては、1日ごとに2~3列ずつ仮設鋼床板を設置するが、その際の復旧舗装は仮舗装となる。ただし、3週間の夜間通行規制の最終日に、本設PC床版に変えるまでの長期期間仮設鋼床版で供用する際の表層舗装としてFFP(フル・ファンクション・ぺーブ)に打ち換える。FFPは縦溝が入ることで、凍結防止剤が保持され凍結抑制効果が持続できるようになるとともに、路面のすべり抵抗性に優れている。現場の線形が悪く、勾配も大きいこと、さらには冬場の凍結が懸念されるためそうした際のスリップを防ぐための施策としてFFPを用いるものである。

仮設鋼床版上はFFPが設置されている
さて、仮設鋼床版採用のもう一つの理由は、供用期間中における上フランジ上面の研掃工や防錆処理などを可能とする点である。

仮設鋼床版構造図
今回採用した仮設鋼床版の構造の特徴は、通常は橋軸方向に配置されている縦リブを、橋軸直角方向に配置している点である。路下からフランジの処理をするときに、この縦リブの向きが橋軸方向だと、フランジ上面の処理ができない。しかし、橋軸直角方向に配置すると、この縦リブがない箇所の床版下面と主桁上フランジ上面の間に318mmの作業空間ができるため、この狭隘部でも施工可能な機械を配置し、フランジの処理をできるようにした。


通常は橋軸方向に配置されている縦リブを、橋軸直角方向に配置(下2枚、井手迫瑞樹撮影)

主桁上フランジ上面の間に318mmの作業空間(井手迫瑞樹撮影)
2つ目の構造上の特徴は、主桁との固定部分である。仮設鋼床版の1パネルごとの大きさは全幅を半断面で分割したサイズ(長さ2,100または2,450mm×5,200mm、4.1または4.65t)であり、これを4支点で止める(全断面では8支点で止める換算となる)。


仮設鋼床版の1パネルごとの大きさは全幅を半断面で分割したサイズを2つつなげる構造である

実際の架設状況
一般的に鋼床版を設置する場合、既設の上フランジにはボルト孔をあけて、固定するのが基本的な止め方である。今回は本設の鋼床版ではなく、あくまで仮設であるため、既設主桁の断面欠損を避けるためプレートで上フランジを挟み込んで、フランジから外れた外側のプレートに高力ボルトを配置して締め上げ、クリップ力を使って、主桁と鋼床版を一体化するという手法をとった。

仮設鋼床版と主桁の固定状況
採用に当たっては、縦リブの向きが通常の向きと異なるため、FEM解析及び輪荷重走行試験を別途行った。そこでデッキ厚19mmあれば持つということが分かり、その厚さとした。同様に縦リブの高さ200mm、配置スパン300mmを基本としたのも、輪荷重に対して構造計算上必要な高さということを確認した上での設計である。なお、施工性についても模擬試験体を製作し、十分施工可能ということを前もって確認したうえで現場に臨んでいる。なおケレン処理や再塗装は従来の工具で可能であるが、スタッド溶植については、300mm強のクリアランスでも行えるような機器を開発して施工している。
.jpg)
仮設鋼床版と主桁の間に生じるクリアランスを利用した上フランジ上面の施工
(ケレン工、ネジ付きスタッド設置工、塗装工)
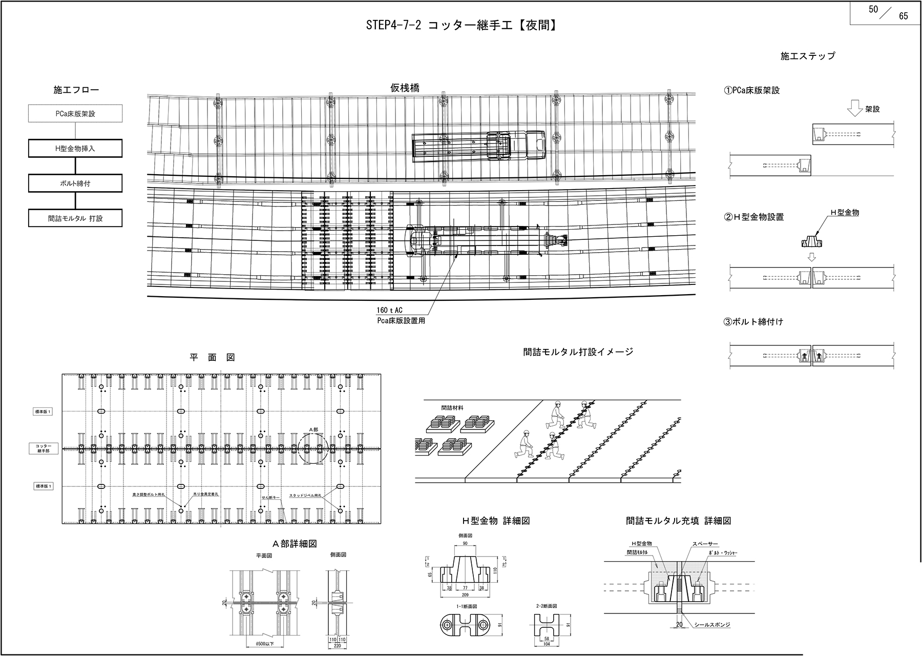
コッターとCHA、2つの継手を採用
間詰めコンの現場施工量を最小化しつつ、CHAの間詰め幅で調整
2つ目の工夫はコッター継手を用いた床版の採用である。コッター継手は通常のプレキャストPC床版継手と比べて継手幅が20mm程度と狭く、コンクリート打設や養生に要する時間を短縮できるため採用した。ただし同橋は線形的に曲線を有するため、どうしても調整幅が必要になる。そうした箇所例えば、支点上などについては、CHA(セラミックヘッドアンカー)継手を採用し、その間詰め長(390mm)で、床版パネルの調整幅を確保した。コッター床版については、幅は既設の床版と同じ10,400mm×橋軸方向長さ2,430mm厚さ220mm、重量19tのパネルを標準とした。一方CHA継手は調整代として使うため、長さは1.5~2m程度とまちまちである。重量は1.5mサイズで12t程度となっている。


コッター継手の構造図と実際の継手部

.jpg)
CHA継手の構造図と実際の継手部
床版と壁高欄を仮置きヤードで一体化
プレキャストPC床版とプレキャストRC壁高欄を採用
3つ目は、床版と壁高欄を事前に仮置きヤードで一体化し、現場では壁高欄の打設あるいは壁高欄と床版の一体化のためのモルタル打設を一切行わないようにしたことである。これも現場での打設・養生時間を省略化するための施策である。床版と壁高欄は完全に一体化したプレキャストブロックで作るのではなく、現場近くの仮置ヤードでプレキャストPC床版パネルとプレキャストRC壁高欄ブロック(ケイコン『クイック壁高欄』)を一体化させ、トレーラーで現場搬入している。


床版と壁高欄を事前に仮置きヤードで一体化
床版防水層はBLGを採用
施工時間の短縮に寄与
4つ目は床版防水に通常のグレードⅡを使うのではなく、BLG(改質グース)を用いることである。こうした極めて短時間での床版取替を行う場合、ネックになるのが高性能床版防水工の施工と養生時間である。その養生時間を補う策として考えられる案は、予め、PC床版パネル上にグレードⅡ防水の主材を設置しておき、床版を各夜間通行止め期間における全面積を設置後、継ぎ目部分のグレードⅡ防水工を行い、さらに接着層を塗布して、舗装基層以上を施工していくという方法もある。しかし、それでも夜間面積こそ小さくできるものの、養生時間や、手間はそれほど変わらないことから、防水層と基層を兼ねることや表層までの養生時間を必要としないため施工時間を短縮できるBLGを採用した。
施工ステップとして,まずは日々のPC床版架設後に基層及び表層として仮舗装を舗設し、夜間通行止め最終日(3週間目)に表層のみFFPに打ち替える。夜間通行止めを繰り返し、1連もしくは1橋分のPC床版取替え完了後に基層(仮舗装)まで切削し、高性能床版防水に置き替えるものである。

夜間通行止め最終日(3週間目)に表層のみFFPに打ち替えている
設計業務時間を10分の1に短縮できる自動生成システムを採用
5つ目は、道路橋の床版更新における設計業務時間を10分の1に短縮できる3Dモデル自動生成システムを採用したことである。同システムは、道路線形(道路全体の座標、長さ、角度)や、プレキャストPC床版に必要な部材である鉄筋などの数値情報を入力するだけで、プレキャストPC床版の3Dモデルを生成し、部材同士が干渉しない配置を自動生成できる。鋼桁の数値情報を入力することで、生成した3Dモデルに反映させることも可能だ。さらに、生成した3Dモデルに、床版取替前の3D測量点群データを取り込むことで、現況と設計値のずれを容易に把握することができるため、従来は膨大な時間を要していた設計的なシミュレーションを、数値の再入力だけで何度でも、短時間で行うことが可能になった。


プレキャストPC床版のモデル化 / 自動生成された配筋3Dモデル

鋼桁の3Dモデル生成および測量データの取り込みによる現況と設計の差分解析・修正
その結果、これまで熟練のCADオペレータが手作業で実施していた繰り返し検討の時間を1/10程度に抑制できた。BIM/CIMモデルが同時に完成するため、施工方法の検討や発注者等との協議にも使用できる。
パラメトリックモデリングが可能な3D-CADソフトを活用しており、設計条件や数値情報といったパラメータを入力し、システム化された設計仕様やノウハウ通りに、床版の3Dモデル化を行うことができる。
プレキャストPC床版のモデル化は、道路線形情報を数値入力するだけで、3次元情報を有した橋梁の橋面を再現できる。さらに、床版を自動割り付けし、床版厚などの形状データを数値入力するだけで3Dモデルを生成できる。また、鉄筋径やピッチ、かぶり等を数値入力することで、それぞれが干渉しない配筋の3Dモデルを自動生成できる。床版1枚ごとに、2Dの図面データも出力することも可能で、数量算出のための構造寸法表も出力できる。
加えて、建設当初の鋼桁手書き図面から読み取った部材厚・幅等の数値を入力することで、様々な鋼桁の3Dモデルを生成することもできる。床版と鋼桁の干渉チェックは、2Dの図面で行う場合と比較して、3Dモデルでは容易になるため、設計業務の生産性が大幅に向上する。また、3Dモデル上に測量データ(点群情報)を取り込み、差分解析を行うことで橋梁全体の現況と図面のずれを瞬時に数値で把握することが可能で、数値を打ち換えるだけで、現況に合わせた微調整を瞬時に設計に反映することが可能とした。
大きく2ステップに分けて施工
STEP1は既存床版撤去~鋼床版の設置
さて、次に施工である。床版取替の施工ステップは大きく2つのSTEPに分けられる。既設床版撤去→仮設鋼床版の設置、仮舗装で供用のSTEP1と仮設鋼床版の撤去→本設プレキャストPC床版を設置し、本舗装で供用するSTEP2である。
-2.jpg)
床版取替要領図(STEP1およびSTEP2)
集中工事方式による夜間通行止めは現在までに4回行われている。第1回、第2回は各2週間(実作業日数は平日10日間)、第3回、第4回は各3週間(実作業日数は平日15日間)である。
第1回と第2回では、まず既設床版の撤去と仮設鋼床版の設置までのSTEP1にあたる部分の施工が行われた。
第1回では境谷橋下り線のPB4~PB5中央部からPB5からPB6側3パネルほどまでの延長24mを施工、次いで第2回ではその両側部分13mと21mをそれぞれ施工した。施工は、橋面上に120tATCを2台配置する。
さらにまず1日目はその週に取替え予定の床版を橋軸直角方向に切断していく。具体的には幅員約2.5mごとにカッターで切断していく。床版切断時の主桁損傷リスクを回避するため、事前に主桁上フランジ近傍の床版ハンチ部に水平コア削孔(φ34mm)を実施した。水平コア削孔は,コンクリートカッターの深さ確認の他,ハンチ部の橋軸方向鉄筋の縁切りも想定している。

STEP1 ①クレーン移動・セット、②床版切断、③吊孔チッピング



.jpg)

